|
|
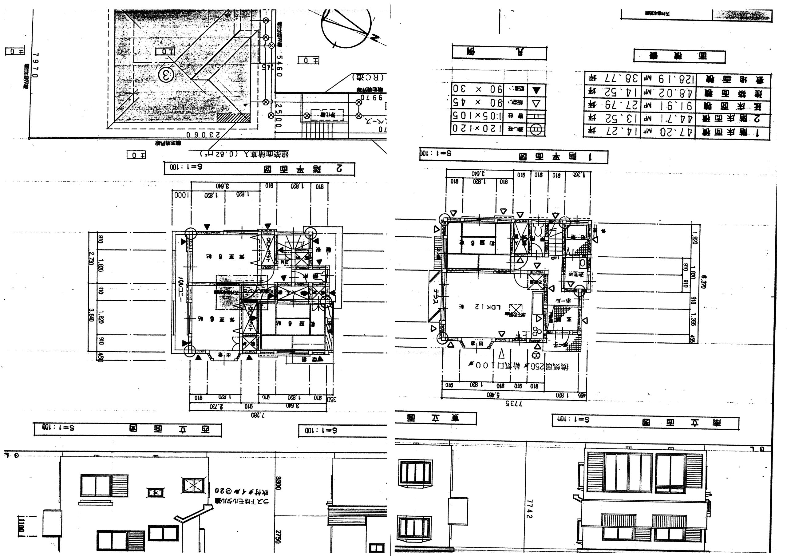
中古戸建 さいたま市見沼区深作一丁目 |
更新日:2025年12月26日
全体区画図
間取り・物件詳細
|
|
||||||||||||||||||||||||||||
周辺環境
MAP
物件概要
物件名称 |
中古戸建 さいたま市見沼区深作一丁目 |
販売戸数/総戸数 |
1戸 |
所在地 |
さいたま市見沼区深作一丁目35-23 |
||
交通 |
東武野田線 七里駅 徒歩21分 |
||
学区 |
春岡小学校 徒歩9分 / 春里中学校 徒歩16分 |
||
価格 |
2340万円 |
||
土地面積 |
128.09㎡(38.77坪) |
建物面積 |
91.91㎡(27.74坪) |
間取り/詳細 |
4LDK |
駐車台数 |
|
地域地区 |
用途地域 |
1種住居 |
|
地目・現況 |
宅地 |
建ぺい率/容積率 |
60/200 |
構造 |
木造 |
築年数 |
|
建築確認番号 |
|||
土地権利 |
所有権 |
||
設備 |
|||
取引態様 |
専任媒介 |
||
備考 |
司法書士売主指定 |
||
物件情報更新日 |
2025年12月 |
||















